Ingatlan adatlapja

Hivatkozási szám: N8125
Rögzítve: 2024-11-09

Ingatlan típusa: Villa
Település: Sangonera la Verde
Tartomány: Murcia
Telek mérete: 351 m2
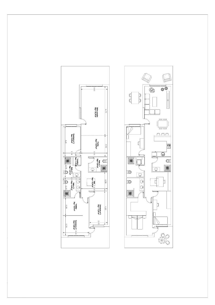
Lakóterület: 120 m2
Szobák: 3
Fürdőszobák: 3


300.000 EUR

ÚJ ÉPÍTÉSŰ IKERHÁZAK TORREGUILBAN, MURCIA Új építésű sorházak és ikerházak Torreguil urbanizációban, 20 percre Murcia városától és Corvera repülőtértől. A modern ingatlanok 1 emeleten épülnek, 3 hálószobával, 2 fürdőszobával, nyitott terű konyhával nappalival, kerttel medencével és parkolóhellyel. Fenyőfákkal körülvett természetes környezetben, 24 órás biztonsági urbanizációban elhelyezkedő ingatlanok. Sangonera la Verde falu a Murcia-kertben (Spanyolország), Murcia község délnyugati negyedében található.


További képek:


Érdeklődés:

Szokoli Piroska

Telefon: +36 70 411 9927

E-mail: hirdeto.szolnok@gmail.com

Az ingatlanreferens további ajánlatai »

Kedvencek:

Az ingatlanok böngészése közben az Önnek tetsző ajánlatokat egy kattintással ide, a Kedvencek közé teheti, így később könnyedén visszatérhet rájuk.

Ady5 Ingatlanpont

IRODA: 5000 Szolnok,Ady Endre út 5.

 +36 70 411 9927

 info@ady5szolnokingatlan.hu

Rólunk

Irodánk elsősorban szolnoki és Szolnok környéki új ingatlanok értékesítésével és használt ingatlanok közvetítésével foglalkozik. Az ingatlanközvetítés területén átfogó, mindenre kiterjedő szolgáltatást nyújtunk, a tanácsadástól, az értékbecsléstől, a szerződéskötésen át a földhivatali ügyintézésig. Bármilyen kérdése lenne, forduljon hozzánk bizalommal.

© Ady5 Ingatlanpont | Minden jog fenntartva.