Ingatlan adatlapja

Hivatkozási szám: N8697
Rögzítve: 2025-09-02

Ingatlan típusa: Town House
Település: Orihuela Costa
Tartomány: Alicante
Lakóterület: 93 m2
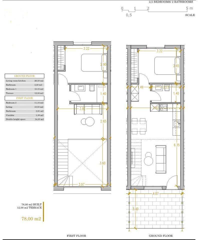
Szobák: 2
Fürdőszobák: 2


280.000 EUR

Kiváltságos elhelyezkedés Costa Blanca szívében Ez a modern, zárt lakókomplexum Orihuela Costa Costán található, Costa Blanca egyik legkeresettebb területén, mindössze 4 km-re Orihuela Costa strandjaitól. Kiváló elhelyezkedése lehetővé teszi, hogy egész évben élvezze a mediterrán napsütést, és hozzáférjen a szabadidő, a golf és a szolgáltatások széles skálájához. Mindössze 5 perc autóútra található a Villamartin golfpálya és a La Zenia Boulevard bevásárlóközpont, amely Alicante tartomány legnagyobb bevásárlóközpontja, több mint 150 üzlettel, étteremmel és szórakozóhellyel. Modern design és exkluzív otthonok Ez a fejlesztés új építésű otthonok választékát kínálja, amelyeket a legmagasabb minőségi és kényelmi követelményeknek megfelelően terveztek: 7 sorház 2 és 3 hálószobával, hozzáféréssel a közös medencéhez. 2 különálló villa 3 hálószobával és 3 fürdőszobával, mindegyik saját medencével. Opcionális: mélygarázs és tárolók felár ellenében. Exkluzív tulajdonságok és jellemzők Minden ingatlant modern és funkcionális megközelítéssel terveztek, beleértve: Parkosított külső műfüves medence mellett. Aerotermikus fűtés a nagyobb energiahatékonyság érdekében. Konyha kvarc reggelizőbárral, ülősarokkal és 50 cm-es fém mosogatóval. Lépcső üveggel és rozsdamentes acél kapaszkodóval. Teljesen felszerelt fürdőszoba fali egységgel, tükörrel és zuhanyparavánnal. Előtelepítés légcsatornás légkondicionáláshoz. Minden hálószobában beépített szekrények, tolóajtókkal és lágyan záródó rendszerrel. Biztonsági bejárati ajtó a nyugalom érdekében. Látnivalók közelsége Punta Prima strand - 4 km, Villamartin golfpálya - 5 km, La Zenia Boulevard bevásárlóközpont - 5 km. Torrevieja városközpontja - 10 km. Alicante repülőtér - 40 perc. Murcia-Corvera repülőtér - 1 óra. Tapasztalja meg a mediterrán életmódot Ez az exkluzív lakókomplexum ideális azok számára, akik modern otthont keresnek a Costa Blancán, hozzáféréssel a strandokhoz, a golfhoz és minden kényelmi szolgáltatáshoz. Ne hagyja ki ezt az egyedülálló lehetőséget, és lépjen kapcsolatba velünk még ma további információért vagy megtekintés megszervezéséhez.


További képek:


Érdeklődés:

Szokoli Piroska

Telefon: +36 70 411 9927

E-mail: hirdeto.szolnok@gmail.com

Az ingatlanreferens további ajánlatai »

Kedvencek:

Az ingatlanok böngészése közben az Önnek tetsző ajánlatokat egy kattintással ide, a Kedvencek közé teheti, így később könnyedén visszatérhet rájuk.

Ady5 Ingatlanpont

IRODA: 5000 Szolnok,Ady Endre út 5.

 +36 70 411 9927

 info@ady5szolnokingatlan.hu

Rólunk

Irodánk elsősorban szolnoki és Szolnok környéki új ingatlanok értékesítésével és használt ingatlanok közvetítésével foglalkozik. Az ingatlanközvetítés területén átfogó, mindenre kiterjedő szolgáltatást nyújtunk, a tanácsadástól, az értékbecsléstől, a szerződéskötésen át a földhivatali ügyintézésig. Bármilyen kérdése lenne, forduljon hozzánk bizalommal.

© Ady5 Ingatlanpont | Minden jog fenntartva.