Ingatlan adatlapja

Hivatkozási szám: N8356
Rögzítve: 2024-11-09

Ingatlan típusa: Villa
Település: Benijofar
Tartomány: Alicante
Telek mérete: 183 m2
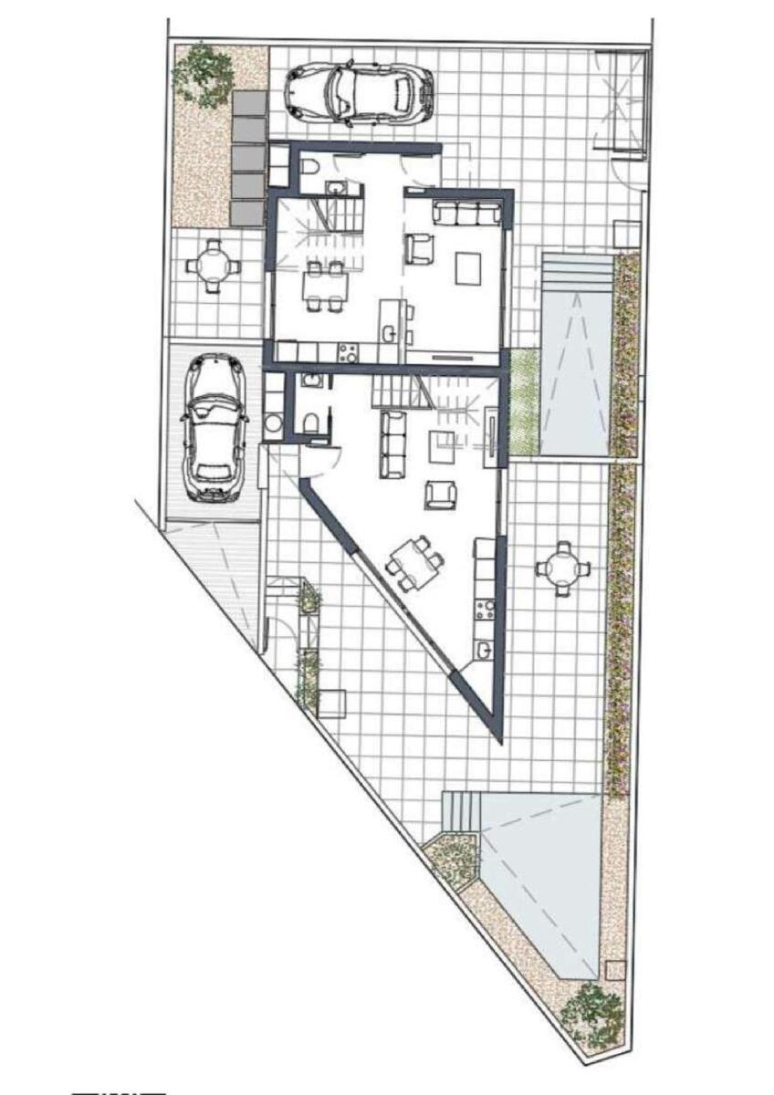
Lakóterület: 110 m2
Szobák: 2
Fürdőszobák: 2


300.000 EUR

ÚJ ÉPÍTÉSŰ IKERHÁZ BENIJOFARBAN Exkluzív ikerház medencével és kerttel Benijofarban. Csodálatos új építésű villa, kiváló minőségű anyagokból és modern dizájnnal épült, amely ötvözi a kényelmet és a funkcionalitást. A 183,94 m2-es magántelken található ingatlan 110,37 m2 beépített területet kínál, két emeleten elosztva. A földszinten egy tágas és világos, nyitott koncepciójú nappali-étkező-konyha található, amely tökéletes a családdal vagy barátokkal töltött pillanatok eltöltésére. Ezen kívül a padlón praktikus WC és előszoba található, amely folyékony hozzáférést biztosít a ház minden területéhez. Az emeleten két hangulatos hálószoba és egy komplett fürdőszoba található. Minden szobát a maximális kényelem és magánélet érdekében alakítottak ki. A villa külseje ugyanilyen lenyűgöző, kövezett területekkel a könnyű karbantartás érdekében, és egy gyönyörű kerttel, amely egy csipetnyi természetet és frissességet kölcsönöz. A telek ékköve egy tágas, 17,60 m2-es medence, amely tökéletes a forró napokon való lehűlésre és a szabadtéri életmód élvezetére. A csendes lakónegyedben található villa a magánélet és az összes alapvető kényelmi szolgáltatás közelségének tökéletes kombinációját kínálja. Ideális otthon azok számára, akik exkluzív lakóhelyet vagy befektetést keresnek. Benijofar egy kedves falu bájos templommal és vonzó térrel/térrel a szárazföld belsejében, a Costa Blanca déli részén, közel Guardamar del Segura és Torrevieja turisztikai üdülőhelyeihez. Benijofar a nyári vakáció idején is népszerű szállás, mivel elég közel van a tengerparti üdülőhelyekhez, mégis elég csendes ahhoz, hogy elmenekülhessen mindentől. A közelben számos golfpálya, valamint vízi parkok találhatók a közeli Rojalesben és Torreviejában. A Benijofarhoz legközelebbi és legjobb strandok körülbelül tizenöt perc autóútra vannak, és a Dél-Costa Blanca legjobb strandjai közé tartoznak, Guardamar del Segura és Torrevieja. Benijofarból rendszeres buszjáratok indulnak Guardamar del Segura és Torrevieja között, ahonnan könnyen elérhetők a strandok. 20 perc autóútra Alicante repülőtere, rendszeres járatokkal egész Európában.


További képek:


Érdeklődés:

Szokoli Piroska

Telefon: +36 70 411 9927

E-mail: hirdeto.szolnok@gmail.com

Az ingatlanreferens további ajánlatai »

Kedvencek:

Az ingatlanok böngészése közben az Önnek tetsző ajánlatokat egy kattintással ide, a Kedvencek közé teheti, így később könnyedén visszatérhet rájuk.

Ady5 Ingatlanpont

IRODA: 5000 Szolnok,Ady Endre út 5.

 +36 70 411 9927

 info@ady5szolnokingatlan.hu

Rólunk

Irodánk elsősorban szolnoki és Szolnok környéki új ingatlanok értékesítésével és használt ingatlanok közvetítésével foglalkozik. Az ingatlanközvetítés területén átfogó, mindenre kiterjedő szolgáltatást nyújtunk, a tanácsadástól, az értékbecsléstől, a szerződéskötésen át a földhivatali ügyintézésig. Bármilyen kérdése lenne, forduljon hozzánk bizalommal.

© Ady5 Ingatlanpont | Minden jog fenntartva.